新莊區新北大道四段富御匯店住大樓

最後更新:8分鐘內
房屋基本資料
案名新莊區新北大道四段【 富御匯】店住大樓案號114職一406金
地址新北市新莊區新北大道四段173號11樓<14>社區/大樓富御匯
銷售狀態待標中售價
售4871萬售3897萬
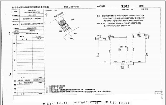
房屋類型法拍大樓總登記坪數128.29 坪
格局屋齡10年
每坪單價30.38萬/坪公設比
車位含停車位編號11、49座向
無障礙環境法拍屋 本物件是法拍屋
拍次 : 第三拍
開標日期 : 115/04/01
建物所在樓層11樓/共14樓管理費
管委會中庭
電梯 未知 是否為凶宅
300公尺內嫌惡設施面前道路
面寬縱深
邊間房屋銷售來源不動產經紀人/專業仲介
房屋特色

▲拍賣公告:金服公司
▲拍賣標的物:新北市新莊區新北大道四段173號11樓<14>
▲【謄本資料】:總坪數128.29坪主建坪52.81坪,附屬坪6.26坪,停車坪35.11坪,公設坪34.11坪
▲【法院筆錄】:民國114年6月17日現場執行時,債務人不在場據警局函復稱為債務人及其家屬自行使用
建號拍定後點交
▲【生活機能】:中信國小
▲【拍次說明】:
標售拍次(目前拍次底價):
第一拍底價:6089萬
第二拍底價:4871萬
第三拍底價:3897萬
拍賣日期:115/04/01
▲台北∣新北∣桃園∣新竹
★Houseinfo:http://www.xn--ogt54mdnjqrqpix.tw/
▲【代標服務】
<過濾案件>追蹤拍賣日期...
<評估案件>投標全場陪同及標價最後建議...
<包辦交屋>與法院協商現住人交屋事項...
<代墊尾款>辦理銀行代墊及投標尾款手續...

※此案件為法拍屋無法看屋,實際狀況以法院筆錄為主。
詳細資訊了解請撥李小姐(02)8260-2416|0986-508652
財欣不動產管理顧份有限公司【統一編號】28306523
坪數說明
建物登記總坪數128.29土地登記總坪數
主建物坪數52.81停車位坪數35.11
附屬建物坪數6.26公共設施坪數34.11
增建坪數地下室坪數
周邊環境
生活機能副都心重劃區,捷運機場線A4新莊副都心站正對面,距行政院新莊聯合辦公大樓步行約5分鐘、國家電影及視聽文化中心步行約8分鐘鄰近交通
鄰近地標公園綠地
鄰近學區捷運站
房屋聯絡人資訊
聯絡人姓名李小姐
(煩請告知聯絡人,您是在889房屋資訊網看到這則廣告,真摯感恩您的幫忙)
手機
0986-508-652
Line加入好友Line加入好友
所屬公司名稱財欣不動產管理顧問有限公司/統編2830 6053
公司電話聯絡電話:02-82602416 / 0986508652公司傳真
公司地址新北市土城區金城路二段396號11樓/桃園市莊敬路一段346號4樓
網 址http://www.精選法拍屋.tw
贊助商廣告
新北新莊法拍大樓-1
新北新莊法拍大樓-1
新北新莊法拍大樓-2
新北新莊法拍大樓-2
新北新莊法拍大樓-3
新北新莊法拍大樓-3
新北新莊法拍大樓-4
新北新莊法拍大樓-4
新北新莊法拍大樓-5
新北新莊法拍大樓-5

物件留言
請注意,如果您詢問的內容與物件不相符合或是廣告,經過審核,系統將會直接刪除您的發問內容
等待圖示
檢舉不實
等待圖示
黃金曝光
相似物件
www.889房屋.tw免責聲明:本系統為租用式開放房屋買賣網站建置平台,僅提供會員查詢-新莊區新北大道四段富御匯店住大樓-等房屋資訊參考,並不涉入任何諮詢、交易。 物件(服務)聯絡人公佈的資訊、文字、照片、圖形、產權、廣告內容、或其他資料若有不實或違法情事,或與客戶聯絡交易過程中若衍生民事或刑事等法律問題,皆與本網站無關,所有商標、文章、名稱等版權,皆歸屬原著作者所有!
本網站保留一切權利,非經正式書面同意,禁止轉貼節錄。