07-7963288
客服電話
House-Info房屋網
│
889house
│
申請房仲網站
首頁
台北
新北
基隆
桃園
新竹
苗栗
台中
彰化
南投
雲林
嘉義
台南
高雄
屏東
台東
花蓮
宜蘭
澎湖
首頁
›
新北房地產
›
新北法拍透天
›
八里法拍透天
›
八里區賢一街家麗堡透天近13行博物館64快渡船頭
八里區賢一街家麗堡透天近13行博物館64快渡船頭
最後更新:19天前
檢舉不實
│
列印
│
物件留言
|
觀看地圖
八里區賢一街家麗堡透天近13行博物館64快渡船頭
八里區賢一街家麗堡透天近13行博物館64快渡船頭
房屋基本資料
案名
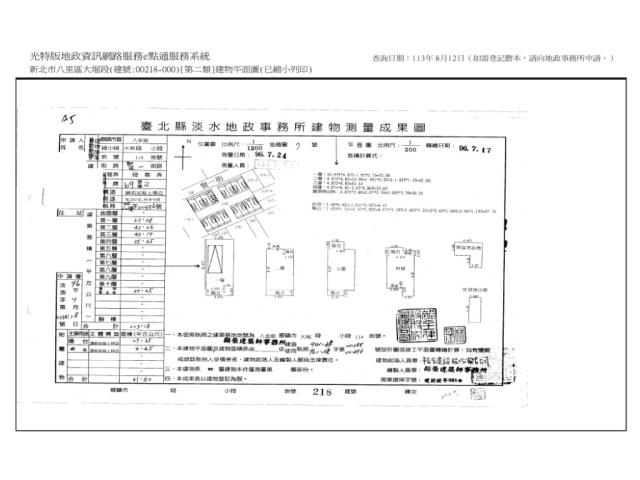
八里區賢一街【家麗堡】透天|近13行博物館、64快、渡船頭
案號
113職四129金 114/10/15(三) 10:30流標
地址
新北市八里區賢一街69號
社區/大樓
家麗堡
銷售狀態
議價中
售價
售1800萬
房屋類型
法拍透天
總登記坪數
71.08 坪
格局
0房
屋齡
18年
每坪單價
25.32萬/坪
公設比
車位
座向
無障礙環境
沒有
法拍屋
本物件是法拍屋
拍次 : 第2拍 部分點交
開標日期 : 2025/10/15(三) 10:30 流標
建物所在樓層
管理費
管委會
有
中庭
沒有
電梯
未知
是否為凶宅
300公尺內嫌惡設施
面前道路
面寬
縱深
邊間
是
房屋銷售來源
不動產經紀人/專業仲介
房屋特色
【法院筆錄內容】
1‧218建號建物拍定後點交。114地號土地拍賣不動產應有部分,查無債務人現實占有部分,拍定後不點交。
2‧114年4月16日現場查封指界時,債務人兒子在場稱目前為其單獨居住,惟現在實際情如何,仍請應買人自行查明注意。
3‧以上不動產分別標價,合併拍賣,以總價最高者得標。《法院案號:士林地方法院案號:114年度司執吉字第16770號,清償票款》
【保證金】
360萬
【拍賣履歴】
一拍2025/09/24流標底標價格2250萬
二拍2025/10/15流標底標價格1800萬
三拍底標價格1440萬
四拍底標價格1152萬
【焦點法拍履歴】
👩🏻⚖️從業二十年以上經驗|競競業業|正派經營
🎯投標準備⇥法拍流程說明|標單填寫|案件現場勘查有無特殊情事|成本評估分析
💰銀行貸款⇥法拍物件估價|投標人財力評估|銀行代墊款協助辦理|最高八成
🏡拍定得標⇥強制執行書狀、履勘陳報書狀往返|債務人搬遷協商|遺留物造冊查估
🎁委託代標⇥免費|委託代標未得標⇥免費
🏢鑫創資產管理有限公司
顏麗杏0911-965339營業員證號:(101)登字第212862號
連真甄0909-031993營業員證號:(101)登字第192002號
更多物件☞焦點法拍
經紀人李彥槿:109北市經證字第02110號
坪數說明
建物登記總坪數
71.08
土地登記總坪數
30.3
主建物坪數
61.64
停車位坪數
附屬建物坪數
9.62
公共設施坪數
增建坪數
地下室坪數
周邊環境
生活機能
鄰近交通
鄰近地標
近十三行博物館、八里渡船頭老街、台北港、64快速道路、61快速道路
公園綠地
鄰近學區
捷運站
房屋聯絡人資訊
聯絡人姓名
小顏
(煩請告知聯絡人,您是在889房屋資訊網看到這則廣告,真摯感恩您的幫忙)
手機
0911-965-339
Line加入好友
所屬公司名稱
鑫創資產管理有限公司
公司電話
公司傳真
公司地址
新北市新莊區中環路二段423號一樓
網 址
http://www.1314home.tw
贊助商廣告
八里法拍透天-1
八里法拍透天-2
八里法拍透天-3
八里法拍透天-4
八里法拍透天-5
八里法拍透天-6
八里法拍透天-7
八里法拍透天-8
到Google查看地圖
到Google查看街景
物件留言
請注意,如果您詢問的內容與物件不相符合或是廣告,經過審核,系統將會直接刪除您的發問內容
檢舉不實
黃金曝光
八里賢一街69號
透天_別墅/0房
71.08坪
售1440萬
淡水興仁路90號
透天/6房
90.44坪
售814萬
新店秀岡二街107
透天_康橋雙語學校/5房
95.34坪
售3090萬
汐止東勢街216巷
透天_別墅/0房
141.11坪
售2271萬
相似物件
淡水英專路79巷7
透天/0房
38.77坪
售1516萬5000元
八里賢一街69號4
透天_別墅/0房
71.08坪
售1800萬
淡水英專路79巷7
透天/0房
38.77坪
售1516萬5000元
新店安忠路102巷
透天/0房
57.22坪
售1681萬
www.889房屋.tw
免責聲明:本系統為租用式開放房屋買賣網站建置平台,僅提供會員查詢-
八里區賢一街家麗堡透天近13行博物館64快渡船頭
-等房屋資訊參考,並不涉入任何諮詢、交易。 物件(服務)聯絡人公佈的資訊、文字、照片、圖形、產權、廣告內容、或其他資料若有不實或違法情事,或與客戶聯絡交易過程中若衍生民事或刑事等法律問題,皆與本網站無關,所有商標、文章、名稱等版權,皆歸屬原著作者所有!
本網站保留一切權利,非經正式書面同意,禁止轉貼節錄。
資料處理中,請稍後...