07-7963288
客服電話
House-Info房屋網
│
889house
│
申請房仲網站
首頁
台北
新北
基隆
桃園
新竹
苗栗
台中
彰化
南投
雲林
嘉義
台南
高雄
屏東
台東
花蓮
宜蘭
澎湖
首頁
›
新北房地產
›
新北法拍大樓
›
板橋法拍大樓
›
板橋區民生路天生贏家近捷運板新站民生公園興隆市場
板橋區民生路天生贏家近捷運板新站民生公園興隆市場
最後更新:14小時內
檢舉不實
│
列印
│
物件留言
|
觀看地圖
板橋區民生路天生贏家近捷運板新站民生公園興隆市場
板橋區民生路天生贏家近捷運板新站民生公園興隆市場
房屋基本資料
案名
板橋區民生路【天生贏家】近捷運板新站、民生公園、興隆市場
案號
115職四5金115/04/08(三)10:30
地址
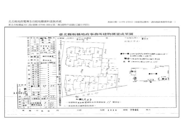
新北市板橋區民生路二段8-3號11樓
社區/大樓
天生贏家(宏巨建設)
銷售狀態
待標中
售價
售1792萬
售1433萬6000元
房屋類型
法拍大樓
總登記坪數
35.81 坪
格局
0房
屋齡
29年
每坪單價
40.03萬/坪
公設比
車位
座向
無障礙環境
有
法拍屋
本物件是法拍屋
拍次 : 第3拍 部份點交
開標日期 : 2026/04/08(三)10:30
建物所在樓層
11樓/共24樓
管理費
管委會
有
中庭
有
電梯
有
是否為凶宅
300公尺內嫌惡設施
面前道路
面寬
縱深
邊間
房屋銷售來源
不動產經紀人/專業仲介
房屋特色
【法院筆錄內容】
1‧本件標的於法院查封時,由共有人(即債務人)之一及其兒子在內,並表示為自住,拍定後點交;另據該共有人之兒子表示,目前位於地下2樓6號停車位由其使用,惟本件停車位係共同使用部分建物之所有權應有部分,應由全體區分所有權人協議使用分管方法,應買人應自行向管委會查明區分所有權人分管契約或公寓大廈規約等,拍定後仍不點交,請應買人特別注意。
2‧本件拍賣標的之共有人有優先承買權,拍定後需調查優先承買人是否優先承買,有時耗時甚久(數月至數年不等),於確定前均不退還所繳保證金及價金,請投標人或應買人勘酌,並待優先承買權確定後,法院另行通知拍定人再行繳納剩餘價金後(勿先行繳納),法院始依法核發權利移轉證書,請投標人或應買人特別注意。
3‧經查詢相關機關,本件標的經初步調查無海砂屋、輻射屋、地震受創、火災受損及發生非自然死亡等情形。又依鑑定報告稱,該標的之土地為住宅區。惟因調查限度難以查明,相關調查結果及使用限制請投標人自行向主管機關查明並評估衡量,綜合考量相關風險再行投標。拍定後,債權人、債務人、拍定人或其他關係人,均不得以法院就上開事由所載使用情形不明或未盡調查能事等理由,請求增減價金或聲請撤銷拍賣。
4‧刊登於新聞紙之公告、法院郵寄之通知、網路公告或以其他方式或管道標示之內容,如與法院公告欄張貼之公告內容不符時,一律以法院公告欄張貼之拍賣公告內容為準。
5‧本件拍賣標的之原所有權人或使用人如有積欠工程受益費、水電費、瓦斯費、管理費等費用,應由拍定人自行查明後與相關單位洽商解決。
6‧為維護交易秩序,保障當事人合理權益:(1)若有停止、撤回、撤銷、延緩強制執行之事由,而其事由確實發生於本案標的拍定日或拍定日前,縱已拍定,法院亦得撤銷拍定,無息返還已經繳交之款項,應買人、拍定人、債權人、債務人均不得異議,不同意之應買人請勿參與本案投標,請另行透過其他方式或管道購買不動產。(2)因虛偽、未據實、及時陳述及提供資料、隱匿資料、偽造文書、詐欺等故意或過失行為(均包括口頭說明及書面文件),致新北地院及所屬承辦人員,受有損害賠償之請求,債權人、債務人應對新北地院及其所屬承辦人員所受之損害,負擔賠償責任。(3)拍定人持法院核發之權利移轉證書,若有無法辦理拍賣標的所有權移轉登記之情形,得由法院撤銷拍定,無息退還拍定人繳交款項,應買人、拍定人、債權人、債務人均不得異議,不同意之應買人請勿參與投標,請另行透過其他方式或管道購買不動產。
7‧本拍賣公告所載不動產面積,係以查封時之謄本為依據,如地政機關於查封後實施重測,則其面積應以重測結果為準。經拍定後,債權人、債務人、拍定人或其他關係人,均不得以重測後面積與公告不符,聲請增減價金或撤銷拍賣。
《新北地方法院案號:114年度司執火字第88208號,分割遺產》
【保證金】
286.8萬
【拍賣履歴】
一拍2026/02/25流標底標價格2240萬
二拍2026/03/18流標底標價格1792萬
三拍2026/04/08底標價格1433.6萬
四拍底標價格1146.9萬
【焦點法拍履歴】
👩🏻⚖️從業二十年以上經驗|競競業業|正派經營
🎯投標準備⇥法拍流程說明|標單填寫|案件現場勘查有無特殊情事|成本評估分析
💰銀行貸款⇥法拍物件估價|投標人財力評估|銀行代墊款協助辦理|最高八成
🏡拍定得標⇥強制執行書狀、履勘陳報書狀往返|債務人搬遷協商|遺留物造冊查估
🎁委託代標⇥免費|委託代標未得標⇥免費
🏢鑫創資產管理有限公司
顏麗杏0911-965339營業員證號:(101)登字第212862號
連真甄0909-031993營業員證號:(101)登字第192002號
更多物件☞焦點法拍
經紀人李彥槿:109北市經證字第02110號
坪數說明
建物登記總坪數
35.81
土地登記總坪數
1.93
主建物坪數
21.04
停車位坪數
9.19
附屬建物坪數
3.54
公共設施坪數
2.04
增建坪數
地下室坪數
周邊環境
生活機能
鄰近交通
鄰近地標
近捷運板新站、民生公園、興隆市場、光仁高中、64快、新北市政府、大遠百
公園綠地
鄰近學區
捷運站
板新
房屋聯絡人資訊
聯絡人姓名
小顏
(煩請告知聯絡人,您是在889房屋資訊網看到這則廣告,真摯感恩您的幫忙)
手機
0911-965-339
Line加入好友
所屬公司名稱
鑫創資產管理有限公司
公司電話
公司傳真
公司地址
新北市新莊區中環路二段423號一樓
網 址
http://www.1314home.tw
贊助商廣告
新北法拍大樓-1
新北法拍大樓-2
新北法拍大樓-3
新北法拍大樓-4
新北法拍大樓-5
新北法拍大樓-6
新北法拍大樓-7
新北法拍大樓-8
新北法拍大樓-9
新北法拍大樓-10
新北法拍大樓-11
到Google查看地圖
到Google查看街景
物件留言
請注意,如果您詢問的內容與物件不相符合或是廣告,經過審核,系統將會直接刪除您的發問內容
檢舉不實
黃金曝光
中和連勝街57巷2
大樓/0房
50.81坪
售2400萬
汐止大同路一段11
大樓_法拍大樓/0房
92.68坪
售1698萬
新莊新北大道四段1
大樓_機場捷運A4站/4房
128.29坪
售3897萬4000元
板橋新府路118號
大樓/0房
33.38坪
售1495萬2000元
相似物件
五股五福路32巷2
大樓/0房
49.78坪
售1520萬
土城中央路三段19
大樓/0房
34.16坪
售1381萬
新莊新崑路145號
大樓/2房
31.22坪
售1235萬
板橋新府路118號
大樓/0房
33.38坪
售1495萬2000元
www.889房屋.tw
免責聲明:本系統為租用式開放房屋買賣網站建置平台,僅提供會員查詢-
板橋區民生路天生贏家近捷運板新站民生公園興隆市場
-等房屋資訊參考,並不涉入任何諮詢、交易。 物件(服務)聯絡人公佈的資訊、文字、照片、圖形、產權、廣告內容、或其他資料若有不實或違法情事,或與客戶聯絡交易過程中若衍生民事或刑事等法律問題,皆與本網站無關,所有商標、文章、名稱等版權,皆歸屬原著作者所有!
本網站保留一切權利,非經正式書面同意,禁止轉貼節錄。
資料處理中,請稍後...