07-7963288
客服電話
House-Info房屋網
│
889house
│
申請房仲網站
首頁
台北
新北
基隆
桃園
新竹
苗栗
台中
彰化
南投
雲林
嘉義
台南
高雄
屏東
台東
花蓮
宜蘭
澎湖
首頁
›
台北房地產
›
台北法拍大樓
›
士林法拍大樓
›
士林區忠勇街郭氏林氏大樓雙車位福志公園
士林區忠勇街郭氏林氏大樓雙車位福志公園
最後更新:2天前
檢舉不實
│
列印
│
物件留言
|
觀看地圖
士林區忠勇街郭氏林氏大樓雙車位福志公園
士林區忠勇街郭氏林氏大樓雙車位福志公園
房屋基本資料
案名
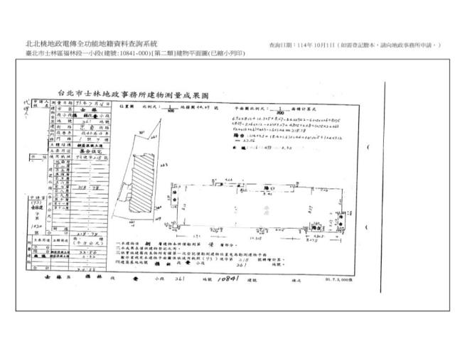
士林區 忠勇街 【郭氏林氏大樓】雙車位 福志公園
案號
114強36522 114/12/22(一)14:30
地址
台北市士林區忠勇街40巷4弄1號7樓
社區/大樓
士林郭氏林氏新建大樓
銷售狀態
待標中
售價
售6000萬
房屋類型
法拍大樓
總登記坪數
120.43 坪
格局
屋齡
21年
每坪單價
49.82萬/坪
公設比
車位
有2車位
座向
無障礙環境
有
法拍屋
本物件是法拍屋
拍次 : 第二拍 點交
開標日期 : 2025/12/22(一)14:30
建物所在樓層
7樓/共8樓
管理費
管委會
中庭
沒有
電梯
有
是否為凶宅
不是
300公尺內嫌惡設施
面前道路
面寬
縱深
邊間
是
房屋銷售來源
不動產經紀人/專業仲介
房屋特色
【法院筆錄內容】
1‧10841建號拍定後,如租約已屆期則點交。
2‧民國114年5月27日現場查封時,債務人在場稱建物出租他人,並提出租賃契約影本附卷,租賃期間自113年3月15日起至115年3月14日止,月租金17萬元。停車位為編號3號及4號,實際為一個機械停車位,因係拍賣共有部分,應由全體區分所有權人協議使用分管方法,故停車位不點交。惟現在實際情形如何,仍請應買人自行查明注意。
3‧投標人應自行查明債務人有無積欠管理費,並注意拍定後民法第826條之1第3項規定之適用問題。
《清償債務》
【保證金】
1200萬
【拍賣履歴】
一拍2025/10/27流標底標價格7500萬
二拍2025/12/22底標價格6000萬
三拍底標價格4800萬
四拍底標價格3840萬
【焦點法拍履歴】
👩🏻⚖️從業二十年以上經驗|競競業業|正派經營
🎯投標準備⇥法拍流程說明|標單填寫|案件現場勘查有無特殊情事|成本評估分析
💰銀行貸款⇥法拍物件估價|投標人財力評估|銀行代墊款協助辦理|最高八成
🏡拍定得標⇥強制執行書狀、履勘陳報書狀往返|債務人搬遷協商|遺留物造冊查估
🎁委託代標⇥免費|委託代標未得標⇥免費
🏢鑫創資產管理有限公司
顏麗杏0911-965339營業員證號:(101)登字第212862號
連真甄0909-031993營業員證號:(101)登字第192002號
更多物件☞焦點法拍
經紀人李彥槿:109北市經證字第02110號
坪數說明
建物登記總坪數
120.43
土地登記總坪數
32.37
主建物坪數
66.18
停車位坪數
附屬建物坪數
7.53
公共設施坪數
46.72
增建坪數
地下室坪數
房屋聯絡人資訊
聯絡人姓名
小顏
(煩請告知聯絡人,您是在889房屋資訊網看到這則廣告,真摯感恩您的幫忙)
手機
0911-965-339
Line加入好友
所屬公司名稱
鑫創資產管理有限公司
公司電話
公司傳真
公司地址
新北市新莊區中環路二段423號一樓
網 址
http://www.1314home.tw
贊助商廣告
台北法拍大樓-1
台北法拍大樓-2
台北法拍大樓-3
台北法拍大樓-4
台北法拍大樓-5
台北法拍大樓-6
台北法拍大樓-7
台北法拍大樓-8
台北法拍大樓-9
台北法拍大樓-10
台北法拍大樓-11
到Google查看地圖
到Google查看街景
物件留言
請注意,如果您詢問的內容與物件不相符合或是廣告,經過審核,系統將會直接刪除您的發問內容
檢舉不實
黃金曝光
大安區光復南路41
大樓_商辦_辦公室/4房
33.62坪
售2953萬
士林中山北路七段8
大樓/0房
118.24坪
售9295萬
大安區安和路一段7
大樓/4房
61.62坪
售5558萬
士林忠勇街40巷4
大樓_華廈_法拍大樓/0房
120.43坪
售6000萬
相似物件
內湖成功路五段15
大樓/0房
112.21坪
售5990萬
松山三民路35巷1
大樓_法拍大樓/0房
74.76坪
售6103萬
士林忠勇街40巷4
大樓/0房
120.43坪
售6000萬
士林忠勇街40巷4
大樓_士林官邸花園/4房
120.43坪
售6000萬
www.889房屋.tw
免責聲明:本系統為租用式開放房屋買賣網站建置平台,僅提供會員查詢-
士林區忠勇街郭氏林氏大樓雙車位福志公園
-等房屋資訊參考,並不涉入任何諮詢、交易。 物件(服務)聯絡人公佈的資訊、文字、照片、圖形、產權、廣告內容、或其他資料若有不實或違法情事,或與客戶聯絡交易過程中若衍生民事或刑事等法律問題,皆與本網站無關,所有商標、文章、名稱等版權,皆歸屬原著作者所有!
本網站保留一切權利,非經正式書面同意,禁止轉貼節錄。
資料處理中,請稍後...