低總價連棟小透天商三特區投資首選通化臨江觀光夜市都更信義安和

最後更新:1天前
房屋基本資料
案名低總價連棟小透天・商三特投資首選案號B553531
地址台北市大安區通化街39巷58弄透天
銷售狀態帶看中售價
售2599萬
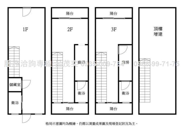
房屋類型公寓_透天_一樓總登記坪數33.42 坪
格局開放格局屋齡35年
每坪單價77.77萬/坪公設比
車位沒有車位座向朝東
無障礙環境沒有法拍屋 不是
建物所在樓層整棟三樓透天管理費
管委會沒有中庭沒有
電梯 沒有 是否為凶宅不是
300公尺內嫌惡設施面前道路1.5米
面寬縱深
邊間不是房屋銷售來源不動產經紀人/專業仲介
房屋特色

低總價連棟小透天・商三特投資首選



🏠物件亮點

通化商圈核心地段,臨近臨江觀光夜市與通化早市,生活機能一應俱全。

低總價入門透天產品,**難得釋出!**自用、出租、投資皆宜。

連棟小透天格局方正,室內採光佳,新近整修可直接入住。

可規劃為工作室、SOHO、小型事務所或自住複合用途,彈性運用。

🚉交通與生活圈

步行即可抵達捷運信義安和站,交通便利,連結信義、大安、東區黃金軸線。

近通化公園、通化街市場,享綠意休憩與在地人情生活圈。

鄰近主要幹道仁愛路、信義路、安和路,出入市中心快速便捷。

🎓優質學區

所屬市立三興國小、市立大安國中學區,教育資源完善,家長安心。

📈投資潛力

土地使用分區:商三特(原屬住三),具發展與改建彈性。

位於大安區稀有透天區塊,地段保值、租金穩定成長。

可視為置產收藏型資產,低總價入門即享台北核心商圈土地權。

✨結語

這是一棟融合生活、創業與投資價值的精品小透天,擁抱城市繁華與巷弄靜謐,一步到位、錯過不再!

👉🏽有需求的您~歡迎來電洽詢預約看屋!!謝謝您!

☎️洽詢預約專線:0935-009-734呂先生

🏡我們將竭誠為您服務,讓您實現居住夢想,開啟全新生活!🏡✨



經紀人證照字號:(91)北縣字第583號

僑茂房屋仲介股份有限公司

珍惜所託善德傳家

~僑茂不動產銷售租賃中物件網站~

https://www.cmhousing.com.tw/agent/0935009734

個人行銷物件網站

http://www.marklu.idv.tw/

歡迎您加入FB~築夢安居交流社團~PO文分享討論免費刊登廣告創造多贏商機!!

https://www.facebook.com/groups/632016442596258

LINE>>>電話搜尋0935009734加好友~感謝您!!

坪數說明
建物登記總坪數33.42土地登記總坪數13.61
主建物坪數33.42停車位坪數
附屬建物坪數公共設施坪數
增建坪數地下室坪數
周邊環境
生活機能坡心市場/通化臨江觀光夜市/全聯社 通化公園鄰近交通捷運:信義安和站 公車:光復南路口站/信義通化街口站
鄰近地標坡心市場/通化臨江觀光夜市公園綠地通化公園
鄰近學區三興國小,大安國中捷運站安和路
房屋聯絡人資訊
聯絡人姓名呂茂奕
(煩請告知聯絡人,您是在889房屋資訊網看到這則廣告,真摯感恩您的幫忙)
手機
0968-997-175
Line加入好友Line加入好友
所屬公司名稱呂茂奕房地產服務網
公司電話0935009734公司傳真
公司地址台北市中正區新生南路一段60號六樓
網 址http://www.marklu.idv.tw
贊助商廣告
台北大安區公寓-1
台北大安區公寓-1
台北大安區公寓-2
台北大安區公寓-2
台北大安區公寓-3
台北大安區公寓-3
台北大安區公寓-4
台北大安區公寓-4
台北大安區公寓-5
台北大安區公寓-5
台北大安區公寓-6
台北大安區公寓-6
台北大安區公寓-7
台北大安區公寓-7
台北大安區公寓-8
台北大安區公寓-8
台北大安區公寓-9
台北大安區公寓-9
台北大安區公寓-10
台北大安區公寓-10
台北大安區公寓-11
台北大安區公寓-11
台北大安區公寓-12
台北大安區公寓-12
台北大安區公寓-13
台北大安區公寓-13
台北大安區公寓-14
台北大安區公寓-14
台北大安區公寓-15
台北大安區公寓-15

物件留言
請注意,如果您詢問的內容與物件不相符合或是廣告,經過審核,系統將會直接刪除您的發問內容
等待圖示
檢舉不實
等待圖示
相似物件
www.889房屋.tw免責聲明:本系統為租用式開放房屋買賣網站建置平台,僅提供會員查詢-低總價連棟小透天商三特區投資首選通化臨江觀光夜市都更信義安和-等房屋資訊參考,並不涉入任何諮詢、交易。 物件(服務)聯絡人公佈的資訊、文字、照片、圖形、產權、廣告內容、或其他資料若有不實或違法情事,或與客戶聯絡交易過程中若衍生民事或刑事等法律問題,皆與本網站無關,所有商標、文章、名稱等版權,皆歸屬原著作者所有!
本網站保留一切權利,非經正式書面同意,禁止轉貼節錄。