07-7963288
客服電話
House-Info房屋網
│
889house
│
申請房仲網站
首頁
台北
新北
基隆
桃園
新竹
苗栗
台中
彰化
南投
雲林
嘉義
台南
高雄
屏東
台東
花蓮
宜蘭
澎湖
首頁
›
高雄房地產
›
高雄法拍透天
›
橋頭法拍透天
›
橋頭區透天雙車庫
橋頭區透天雙車庫
最後更新:11小時內
檢舉不實
│
列印
│
物件留言
|
觀看地圖
橋頭區透天雙車庫
橋頭區透天雙車庫
房屋基本資料
案名
近橋頭車站橋頭國小地40坪透天豪宅雙車庫拍2840萬
案號
橋頭區樹德路
地址
高雄市橋頭區樹德路
銷售狀態
待標中
售價
售2840萬
房屋類型
法拍透天_別墅_一樓
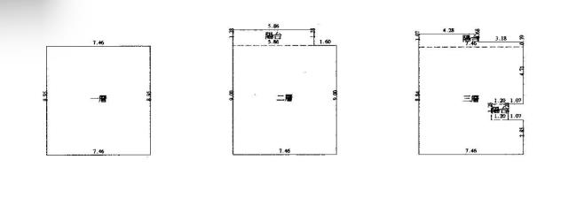
總登記坪數
82.04 坪
格局
4房
,3廳,4衛,3陽台,1廚房
屋齡
每坪單價
34.62萬/坪
公設比
車位
室內雙車庫
座向
無障礙環境
法拍屋
本物件是法拍屋
拍次 : 一拍
開標日期 : 02/11
建物所在樓層
共3樓
管理費
管委會
沒有
中庭
沒有
電梯
沒有
是否為凶宅
不是
300公尺內嫌惡設施
面前道路
6米
面寬
7.46米
縱深
9米
邊間
房屋銷售來源
不動產經紀人/專業仲介
房屋特色
104法拍屋四大保證:
一、過濾案件︰保證產權清楚,過濾瑕疵案件
二、評估標價︰保證標得到又標得便宜
三、包辦點交︰保證和諧快速交屋附點交保固書
四、代墊尾款︰保證提供尾款代墊
◎沒得標•免付費!!竭‧誠‧為‧您‧服‧務
您所擔心的問題就是我們的專業
專業的問題,就交給專業有信用有口碑的團隊
代標顧問:蘇副理0934087640
目前拍次為115/02/11一拍2840萬《請來電洽詢進場拍次‧讓您標得到又標得低!》
Google高雄法拍顧問蘇副理0934087640
更多精選好屋
❤️買房網:買屋網mywoo-蘇秀珠豪宅規格親民價
❤️LINE:https://reurl.cc/28k2L9請點選連結可加LINE好友
❤️FB:https://reurl.cc/qZ1MNE特別徵選低總價物件
❤️樂屋網:vip.rakuya.com.tw/0934087640/sell更多精選物件請點連結
❤️便宜房子何處找?https://shorturl.at/qY5qG
※※法拍有時效性法拍資訊以法院公告為準※※
※※法拍屋不能看內部請來電洽詢詳細地址
坪數說明
建物登記總坪數
82.04
土地登記總坪數
40.00
主建物坪數
64.07
停車位坪數
附屬建物坪數
公共設施坪數
增建坪數
地下室坪數
房屋聯絡人資訊
聯絡人姓名
蘇副理
(煩請告知聯絡人,您是在889房屋資訊網看到這則廣告,真摯感恩您的幫忙)
手機
0934-087-640
Line加入好友
所屬公司名稱
一零四高欣仲介經紀有限公司
公司電話
0934087640
公司傳真
一零四高欣仲介經紀有限公司
公司地址
高雄市苓雅區海邊路65號9樓
網 址
http://www.南台灣法拍.tw
贊助商廣告
橋頭透天法拍-1
橋頭透天法拍-2
橋頭透天法拍-3
橋頭透天法拍-4
橋頭透天法拍-5
橋頭透天法拍-6
到Google查看地圖
到Google查看街景
物件留言
請注意,如果您詢問的內容與物件不相符合或是廣告,經過審核,系統將會直接刪除您的發問內容
檢舉不實
相似物件
鳥松山腳路106之
透天/0房
254坪
售3052萬
橋頭樹德路208巷
透天/4房
82坪
售2840萬
橋頭樹德路208巷
透天/0房
82.04坪
售2840萬
小港孔宅街85-2
透天/5房
173.74坪
售2800萬
www.889房屋.tw
免責聲明:本系統為租用式開放房屋買賣網站建置平台,僅提供會員查詢-
橋頭區透天雙車庫
-等房屋資訊參考,並不涉入任何諮詢、交易。 物件(服務)聯絡人公佈的資訊、文字、照片、圖形、產權、廣告內容、或其他資料若有不實或違法情事,或與客戶聯絡交易過程中若衍生民事或刑事等法律問題,皆與本網站無關,所有商標、文章、名稱等版權,皆歸屬原著作者所有!
本網站保留一切權利,非經正式書面同意,禁止轉貼節錄。
資料處理中,請稍後...