埔頂公園透天增建5坪仁德七街28巷20號

最後更新:6小時內
房屋基本資料
案名埔頂公園,透天,仁德七街28巷20號案號114梅64597
地址桃園市大溪區仁德七街28巷20號
銷售狀態待標中售價
售2210萬
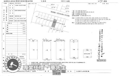
房屋類型法拍透天總登記坪數83.82 坪
格局屋齡21年
每坪單價26.37萬/坪公設比
車位一樓平面車位座向朝東北
無障礙環境法拍屋 本物件是法拍屋
拍次 : 1
開標日期 : 115/5/12
建物所在樓層1~4/4管理費
管委會中庭
電梯 未知 是否為凶宅
300公尺內嫌惡設施面前道路
面寬縱深
邊間房屋銷售來源不動產經紀人/專業仲介
房屋特色
貸款才是決勝點,提供預審,保證核貸
擔任『台灣不動產拍賣協會』監事

◆己經查封,無法看室內◆
◆門牌:仁德七街28巷20號
◆主建物:69坪
◆附屬:14.82坪
◆增建:5.69坪
◆土地:29.16坪
◆土地現值【115年公告現值:51000元/㎡】
◆房屋用途:RC造/住宅,停車空間,機電空間,樓梯間
◆房屋樓層:所在1~4樓/總樓層4樓
◆房屋朝向:朝東北

◎車位:一樓平面車位
◎另增建5.69坪
◎交通動線:公車站(仁德街口)
◎生活機能:超商、藥局、市民活動中心、咖啡廳、火鍋、牛排
◎鄰近學校:仁善國小
◎公園綠地:仁和棒球場、埔頂公園
【法院筆錄】●點交情形→點交●
1‧查封時債務人在場稱建物為其與家人同住,於1樓設有神明廳,拍定後依現況點交;但如有其他依法不能點交之情事,本院得不點交。
2‧編號2建物未辦建物所有權第一次登記,拍定人無法逕持權利移轉證書辦理所有權登記,且如經建築主管機關認定為違章建築,拍定人應自行承擔受拆除之危險;又當事人與拍定人不得以面積不符,請求增減價金或撤銷拍定。《給付票款》

※流標打8折,概以執行公告為準
第一拍05/12底標價:2210萬
第二拍未定底標價:1768萬
第三拍未定底標價:1415萬
第四拍未定底標價:1274萬

王牌經理人,十六年以上法拍經驗豐富
眼光最精準,代標多筆億元以上的案件
在地最深耕,資源豐富廣闊人脈執行力
協助自用者,找到理想實用的房屋圓夢
幫助投資人,創造物件最高投資報酬率
最專業團隊,讓您案件事半功倍又圓滿

【在地深耕,眼光精準,人脈廣闊】
■產權清楚、案件評估、排除瑕疵事故
■全程負責、快速交屋、拍後不被騷擾
■代墊利率6.3%、額度8成、手續費0.3%
■房貸利率2.85%、免排隊、立即撥款
■法拍屋代墊款、需要資金、歡迎找我

104法拍網|透明房訊|全國最大
◆規模最大◈歷史最久◆
全國七處分公司,300多位編制人員
成立於1986年,全國16家法院駐點
◆專業最強◈全國唯一◆
全國超過1800場授課專業講習
100坪倉庫,造冊拍賣遺留物
◆正派經營◈開立發票◆
營業員(99)登159091號
經紀人(96)年北市經證字01243號
一零四法拍網(股),統編28306523
◆愛心傳播◈每件捐款5000元◆
至「伊甸社會福利基金會」

能看屋的,網頁會註明。一般法拍屋查封之後無法入內參觀,可依據建物平面圖推斷室內格局是否方正,或參考樓上樓下鄰居房屋。(預約看屋留言,一律不回)
坪數說明
建物登記總坪數土地登記總坪數29.16
主建物坪數69停車位坪數
附屬建物坪數14.82公共設施坪數
增建坪數5.69地下室坪數
房屋聯絡人資訊
聯絡人姓名經理:華國峰 / 特助:李佩玟
(煩請告知聯絡人,您是在889房屋資訊網看到這則廣告,真摯感恩您的幫忙)
手機
0916-000-104
Line加入好友Line加入好友
所屬公司名稱透明房訊 ,104法拍網(股)
公司電話(02)8262-5555 / (03)337-5555公司傳真買賣一下子、服務一輩子
公司地址新北市土城區金城路二段396號11樓 / 桃園市桃園區莊敬路一段346號4樓
網 址http://www.104法拍屋.tw
贊助商廣告
大桃園廠房,大桃園工業地,大桃園工業地廠房
桃園廠房出租,桃園工業地,桃園廠房工業地
大溪法拍透天-1
大溪法拍透天-1
大溪法拍透天-2
大溪法拍透天-2
大溪法拍透天-3
大溪法拍透天-3
大溪法拍透天-4
大溪法拍透天-4
大溪法拍透天-5
大溪法拍透天-5
大溪法拍透天-6
大溪法拍透天-6
大溪法拍透天-7
大溪法拍透天-7
大溪法拍透天-8
大溪法拍透天-8

物件留言
請注意,如果您詢問的內容與物件不相符合或是廣告,經過審核,系統將會直接刪除您的發問內容
等待圖示
檢舉不實
等待圖示
黃金曝光
相似物件
www.889房屋.tw免責聲明:本系統為租用式開放房屋買賣網站建置平台,僅提供會員查詢-埔頂公園透天增建5坪仁德七街28巷20號-等房屋資訊參考,並不涉入任何諮詢、交易。 物件(服務)聯絡人公佈的資訊、文字、照片、圖形、產權、廣告內容、或其他資料若有不實或違法情事,或與客戶聯絡交易過程中若衍生民事或刑事等法律問題,皆與本網站無關,所有商標、文章、名稱等版權,皆歸屬原著作者所有!
本網站保留一切權利,非經正式書面同意,禁止轉貼節錄。