07-7963288
客服電話
House-Info房屋網
│
889house
│
申請房仲網站
首頁
台北
新北
基隆
桃園
新竹
苗栗
台中
彰化
南投
雲林
嘉義
台南
高雄
屏東
台東
花蓮
宜蘭
澎湖
首頁
›
新北房地產
›
新北法拍公寓
›
淡水法拍公寓
›
淡水區淡金路公寓四樓近淡海新市鎮
淡水區淡金路公寓四樓近淡海新市鎮
最後更新:2天前
檢舉不實
│
列印
│
物件留言
|
觀看地圖
淡水區淡金路公寓四樓近淡海新市鎮
淡水區淡金路公寓四樓近淡海新市鎮
房屋基本資料
案名
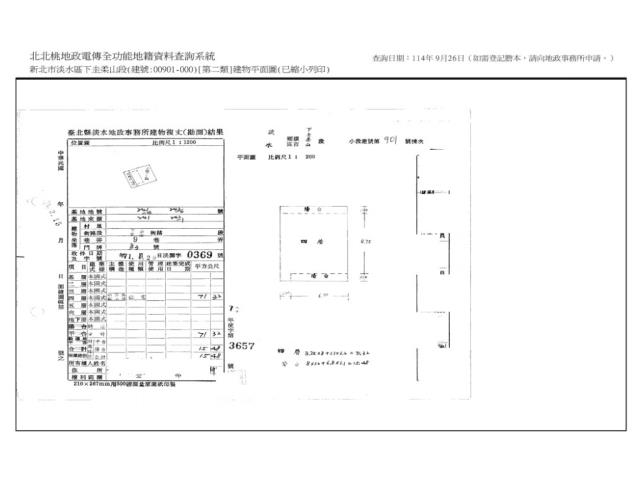
淡水區淡金路|公寓四樓|近淡海新市鎮
案號
113高104448 115/01/16-04/15
地址
新北市淡水區淡金路三段46巷22號4樓
銷售狀態
待標中
售價
售342萬
售275萬
房屋類型
法拍公寓
總登記坪數
26.25 坪
格局
0房
屋齡
44年
每坪單價
10.48萬/坪
公設比
車位
沒有車位
座向
無障礙環境
沒有
法拍屋
本物件是法拍屋
拍次 : 公告應買 點交
開標日期 : 2026/01/16-2026/04/15
建物所在樓層
4樓/共4樓
管理費
管委會
沒有
中庭
沒有
電梯
沒有
是否為凶宅
300公尺內嫌惡設施
面前道路
面寬
縱深
邊間
不是
房屋銷售來源
不動產經紀人/專業仲介
房屋特色
【法院筆錄內容】
1‧901建號拍定後點交。
2‧民國114年2月17日現場執行時,經開鎖入內檢視為空屋,已斷水斷電,四周牆面因嚴重漏水均已剝落,天花板及樑柱有部分鋼筋裸露情形。拍賣標的經查相關主管機關後,並無發生非自然死亡情形,亦無發生過火災事件,亦非屬列管之海砂屋、地震受損屋。依強制執行法第113條準用第69條之規定,拍賣物買受人就物之瑕疵無擔保請求權,不得於拍定後主張,請應買人留意。惟現在實際情形如何,仍請應買人自行查明注意。
3‧投標人應自行查明債務人有無積欠管理費,並注意拍定後民法第826條之1第3項規定之適用問題。
《拍賣抵押物》
【保證金】
55萬
【拍賣履歴】
一拍2025/10/23流標底標價格426萬
二拍2025/11/20流標底標價格342萬
三拍/公告應買2026/01/16-2026/04/15底標價格275萬
四拍底標價格218.1萬
【焦點法拍履歴】
👩🏻⚖️從業二十年以上經驗|競競業業|正派經營
🎯投標準備⇥法拍流程說明|標單填寫|案件現場勘查有無特殊情事|成本評估分析
💰銀行貸款⇥法拍物件估價|投標人財力評估|銀行代墊款協助辦理|最高八成
🏡拍定得標⇥強制執行書狀、履勘陳報書狀往返|債務人搬遷協商|遺留物造冊查估
🎁委託代標⇥免費|委託代標未得標⇥免費
🏢鑫創資產管理有限公司
顏麗杏0911-965339營業員證號:(101)登字第212862號
連真甄0909-031993營業員證號:(101)登字第192002號
更多物件☞焦點法拍
經紀人李彥槿:109北市經證字第02110號
坪數說明
建物登記總坪數
26.25
土地登記總坪數
10.4
主建物坪數
21.57
停車位坪數
附屬建物坪數
4.68
公共設施坪數
增建坪數
地下室坪數
周邊環境
生活機能
鄰近交通
鄰近地標
近淡海新市鎮
公園綠地
鄰近學區
捷運站
房屋聯絡人資訊
聯絡人姓名
小顏
(煩請告知聯絡人,您是在889房屋資訊網看到這則廣告,真摯感恩您的幫忙)
手機
0911-965-339
Line加入好友
所屬公司名稱
鑫創資產管理有限公司
公司電話
公司傳真
公司地址
新北市新莊區中環路二段423號一樓
網 址
http://www.1314home.tw
贊助商廣告
淡水公寓法拍-1
淡水公寓法拍-2
淡水公寓法拍-3
淡水公寓法拍-4
淡水公寓法拍-5
淡水公寓法拍-6
淡水公寓法拍-7
淡水公寓法拍-8
淡水公寓法拍-9
淡水公寓法拍-10
淡水公寓法拍-11
到Google查看地圖
到Google查看街景
物件留言
請注意,如果您詢問的內容與物件不相符合或是廣告,經過審核,系統將會直接刪除您的發問內容
檢舉不實
黃金曝光
新莊民樂街87巷1
公寓/0房
24.88坪
售827萬
三峽大埔路183號
公寓_一樓_恩主公醫院商圈/0房
31.19坪
售533萬8000元
土城學府路一段75
公寓_法拍公寓/0房
39.41坪
售1509萬5000元
土城明德路一段53
公寓_頂加/3房
24.72坪
售711萬
相似物件
淡水淡金路三段46
公寓/0房
26.25坪
售275萬
瑞芳三爪子坑路正貿
公寓/0房
32.71坪
售252萬8000元
汐止汐萬路二段22
公寓/0房
32.46坪
售285萬
淡水淡金路三段46
公寓/3房
26.25坪
售275萬
www.889房屋.tw
免責聲明:本系統為租用式開放房屋買賣網站建置平台,僅提供會員查詢-
淡水區淡金路公寓四樓近淡海新市鎮
-等房屋資訊參考,並不涉入任何諮詢、交易。 物件(服務)聯絡人公佈的資訊、文字、照片、圖形、產權、廣告內容、或其他資料若有不實或違法情事,或與客戶聯絡交易過程中若衍生民事或刑事等法律問題,皆與本網站無關,所有商標、文章、名稱等版權,皆歸屬原著作者所有!
本網站保留一切權利,非經正式書面同意,禁止轉貼節錄。
資料處理中,請稍後...