07-7963288
客服電話
House-Info房屋網
│
889house
│
申請房仲網站
首頁
台北
新北
基隆
桃園
新竹
苗栗
台中
彰化
南投
雲林
嘉義
台南
高雄
屏東
台東
花蓮
宜蘭
澎湖
首頁
›
新北房地產
›
新北法拍公寓
›
新莊法拍公寓
›
新莊區瓊林南路公寓四樓近樹林秀泰影城興仁夜市河濱公園
新莊區瓊林南路公寓四樓近樹林秀泰影城興仁夜市河濱公園
最後更新:11小時內
檢舉不實
│
列印
│
物件留言
|
觀看地圖
新莊區瓊林南路公寓四樓近樹林秀泰影城興仁夜市河濱公園
新莊區瓊林南路公寓四樓近樹林秀泰影城興仁夜市河濱公園
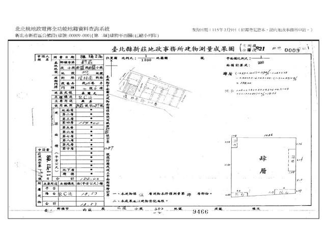
房屋基本資料
案名
新莊區瓊林南路|公寓四樓|近樹林秀泰影城、興仁夜市、河濱公園
案號
115職四18金 115/04/08(三)10:30
地址
新北市新莊區瓊林南路305巷3號4樓
銷售狀態
待標中
售價
售1599萬9000元
售1280萬
房屋類型
法拍公寓
總登記坪數
65.45 坪
格局
0房
屋齡
35年
每坪單價
19.56萬/坪
公設比
車位
沒有車位
座向
無障礙環境
沒有
法拍屋
本物件是法拍屋
拍次 : 第3拍 點交
開標日期 : 2026/04/08(三)10:30
建物所在樓層
4樓/共5樓
管理費
管委會
沒有
中庭
沒有
電梯
沒有
是否為凶宅
300公尺內嫌惡設施
面前道路
面寬
縱深
邊間
不是
房屋銷售來源
不動產經紀人/專業仲介
房屋特色
【法院筆錄內容】
1‧拍賣標的由債務人及其家屬自住,拍定後應予點交。
2‧另鑑定報告勘查並未入室,無法得之勘估標的內部是否有嚴重漏水、地震受創或火災受損等事宜,僅以外觀現況判斷。又查詢公開資訊網站,現未查得本建物有海砂屋、輻射屋、地震受創、非自然死亡之列管足以影響交易之特殊情事,實際情形仍請投標人至現場自行查明注意。
3‧投標人應自行查明債務人有無積欠工程受益費、水電瓦斯費、管理費、公共基金等,應依公寓大廈管理條例第24條規定辦理,並注意拍定後民法第799之1條第4項規定之適用間題。
4‧本件如有停止、撤回、撤銷、延緩執行、足額清償等事由,且該事由確實發生於本案拍定前,縱已宣布拍定,法院亦得撤銷拍定,無息返還已繳交之款項,當事人均不得異議,不同意者,請勿參與投標應買。
5‧刊登於網站或其他公告處所之公告內容如與法院公告欄張貼之公告內容不符時,一律以法院公告欄張貼之拍賣公告內容為準。
6‧拍賣之不動產如於查封後經地政機關實施重測,其面積應以重測結果(地籍圖)為準,拍定後債權人、債務人、拍定人或其他關係人均不得以面積增減請求增減價金或聲請撤銷拍賣。
《新北地方法院案號:114年度司執壽字第105859號,清償債務》
【保證金】
256萬
【拍賣履歴】
一拍2026/02/25流標底標價格1999.8萬
二拍2026/03/18流標底標價格1599.9萬
三拍2026/04/08底標價格1280萬
四拍底標價格1023.8萬
【焦點法拍履歴】
👩🏻⚖️從業二十年以上經驗|競競業業|正派經營
🎯投標準備⇥法拍流程說明|標單填寫|案件現場勘查有無特殊情事|成本評估分析
💰銀行貸款⇥法拍物件估價|投標人財力評估|銀行代墊款協助辦理|最高八成
🏡拍定得標⇥強制執行書狀、履勘陳報書狀往返|債務人搬遷協商|遺留物造冊查估
🎁委託代標⇥免費|委託代標未得標⇥免費
🏢鑫創資產管理有限公司
顏麗杏0911-965339營業員證號:(101)登字第212862號
連真甄0909-031993營業員證號:(101)登字第192002號
更多物件☞焦點法拍
經紀人李彥槿:109北市經證字第02110號
坪數說明
建物登記總坪數
65.45
土地登記總坪數
14.39
主建物坪數
46.59
停車位坪數
附屬建物坪數
5.60
公共設施坪數
13.26
增建坪數
地下室坪數
周邊環境
生活機能
鄰近交通
鄰近地標
近樹林秀泰影城、興仁花園夜市、監理所、河濱公園
公園綠地
鄰近學區
捷運站
房屋聯絡人資訊
聯絡人姓名
小顏
(煩請告知聯絡人,您是在889房屋資訊網看到這則廣告,真摯感恩您的幫忙)
手機
0911-965-339
Line加入好友
所屬公司名稱
鑫創資產管理有限公司
公司電話
公司傳真
公司地址
新北市新莊區中環路二段423號一樓
網 址
http://www.1314home.tw
贊助商廣告
新北新莊法拍公寓-1
新北新莊法拍公寓-2
新北新莊法拍公寓-3
新北新莊法拍公寓-4
新北新莊法拍公寓-5
新北新莊法拍公寓-6
新北新莊法拍公寓-7
新北新莊法拍公寓-8
新北新莊法拍公寓-9
新北新莊法拍公寓-10
新北新莊法拍公寓-11
新北新莊法拍公寓-12
到Google查看地圖
到Google查看街景
物件留言
請注意,如果您詢問的內容與物件不相符合或是廣告,經過審核,系統將會直接刪除您的發問內容
檢舉不實
黃金曝光
板橋國泰街38號4
公寓/0房
4.54坪
售344萬
鶯歌大湖路548巷
公寓/0房
26.48坪
售556萬
新店“法拍屋”大同
公寓_裕隆城購物中心/3房
26.85坪
售1416萬3000元
中和民享街91號2
公寓/0房
36.42坪
售1229萬
相似物件
中和民享街91號2
公寓/0房
36.41坪
售1228萬8000元
蘆洲中正路185巷
公寓/3房
31.76坪
售1324萬
汐止明峰街145號
公寓_法拍公寓頂加/0房
29.42坪
售984萬
三重車路頭街51巷
公寓_法拍公寓/0房
28.34坪
售1330萬
www.889房屋.tw
免責聲明:本系統為租用式開放房屋買賣網站建置平台,僅提供會員查詢-
新莊區瓊林南路公寓四樓近樹林秀泰影城興仁夜市河濱公園
-等房屋資訊參考,並不涉入任何諮詢、交易。 物件(服務)聯絡人公佈的資訊、文字、照片、圖形、產權、廣告內容、或其他資料若有不實或違法情事,或與客戶聯絡交易過程中若衍生民事或刑事等法律問題,皆與本網站無關,所有商標、文章、名稱等版權,皆歸屬原著作者所有!
本網站保留一切權利,非經正式書面同意,禁止轉貼節錄。
資料處理中,請稍後...