07-7963288
客服電話
House-Info房屋網
│
889house
│
申請房仲網站
首頁
台北
新北
基隆
桃園
新竹
苗栗
台中
彰化
南投
雲林
嘉義
台南
高雄
屏東
台東
花蓮
宜蘭
澎湖
首頁
›
台南房地產
›
台南法拍透天
›
善化法拍透天
›
靜巷透天小新營成功路53巷75號
靜巷透天小新營成功路53巷75號
最後更新:5小時內
檢舉不實
│
列印
│
物件留言
|
觀看地圖
靜巷透天小新營成功路53巷75號
靜巷透天小新營成功路53巷75號
房屋基本資料
案名
近南科園區,小新營,成功路53巷75號
案號
114明134129
地址
台南市善化區成功路53巷75號
銷售狀態
待標中
售價
售2144萬
售1716萬
房屋類型
法拍透天
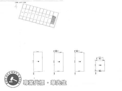
總登記坪數
57.9 坪
格局
屋齡
19年
每坪單價
29.64萬/坪
公設比
車位
庭院車庫
座向
朝東北
無障礙環境
法拍屋
本物件是法拍屋
拍次 : 4
開標日期 : 115/2/25
建物所在樓層
1~4/4
管理費
管委會
中庭
電梯
沒有
是否為凶宅
300公尺內嫌惡設施
面前道路
面寬
縱深
邊間
房屋銷售來源
不動產經紀人/專業仲介
房屋特色
貸款才是決勝點,提供預審,保證核貸
千萬經理人,接任台灣不動產拍賣協會監事
◆門牌:成功路53巷75號
◆主建物:54.05坪
◆附屬:3.85坪
◆土地:41.16坪
◆土地現值【住宅區■114年公告現值:33600元/㎡】
◆房屋用途:鋼筋混凝土造/住家用
◆房屋樓層:所在1~4樓/總樓層4樓
◆房屋朝向:朝東北
◎投資房地產,就是要透天
【法院筆錄】●點交情形→如備註●
1‧查封時,債務人在場稱:系爭建物係由債務人自住使用,惟本件不動產實際現狀及使用情形,投標人仍應自行查證,拍定後依債務人占有現況點交,但如有其他依法不得點交之情形,本院得不點交。
2‧拍賣之建物,其中有增建部份,係未辦保存登記之建物,拍定後可否辦理第一次建物登記,由拍定人自行向地政機關洽辦,與本院權責無關。如經主關機關認屬違章建築,拍定人應自行承擔拆除風險,亦不得以建物面積之增減或位置偏移請求增減價金或撤銷拍定,請應買人特別注意。
3‧本件第一拍價格參考113年度司執字第5063號案件第3次拍賣價格核定底價。
4‧依強制執行法第113條準用同法第69條之規定,法院拍賣,不負物之瑕疵擔保責任,拍定人不得以物之瑕疵請求撤銷拍定。
5‧拍賣之土地,如拍定之價格低於所核定之土地增值稅者,依土地稅法第51條第2項規定,拍定人應代為繳足其差額,本院始能發給權利移轉證明書,應買人應自行注意。《給付票款》
※無人買受時,酌減20%估算,概以執行單位公告為準
第一拍12/03底標價:2680萬
第二拍12/24底標價:2144萬
第三拍01/14底標價:1716萬
第四拍02/25底標價:1716萬
王牌經理人,十六年以上法拍經驗豐富
眼光最精準,代標多筆億元以上的案件
在地最深耕,資源豐富廣闊人脈執行力
協助自用者,找到理想實用的房屋圓夢
幫助投資人,創造物件最高投資報酬率
最專業團隊,讓您案件事半功倍又圓滿
【在地深耕,眼光精準,人脈廣闊】
■產權清楚、案件評估、排除瑕疵事故
■全程負責、快速交屋、拍後不被騷擾
■代墊利率6.3%、額度8成、手續費0.3%
■房貸利率2.65%、免排隊、立即撥款
■法拍屋代墊款、需要資金、歡迎找我
104法拍網|透明房訊|全國最大
◆規模最大◈歷史最久◆
全國七處分公司,300多位編制人員
成立於1986年,全國16家法院駐點
◆專業最強◈全國唯一◆
全國超過1800場授課專業講習
100坪倉庫,造冊拍賣遺留物
◆正派經營◈開立發票◆
營業員(99)登159091號
經紀人(96)年北市經證字01243號
一零四法拍網(股),統編28306523
能看屋的,網頁會註明。一般法拍屋查封之後無法入內參觀,可依據建物平面圖推斷室內格局是否方正,或參考樓上樓下鄰居房屋。(預約看屋留言,一律不回)
坪數說明
建物登記總坪數
土地登記總坪數
41.16
主建物坪數
54.05
停車位坪數
附屬建物坪數
3.85
公共設施坪數
增建坪數
地下室坪數
房屋聯絡人資訊
聯絡人姓名
經理:華國峰 / 特助:李佩玟
(煩請告知聯絡人,您是在889房屋資訊網看到這則廣告,真摯感恩您的幫忙)
手機
0916-000-104
Line加入好友
所屬公司名稱
透明房訊 ,104法拍網(股)
公司電話
(02)8262-5555 / (03)337-5555
公司傳真
買賣一下子、服務一輩子
公司地址
新北市土城區金城路二段396號11樓 / 桃園市桃園區莊敬路一段346號4樓
網 址
http://www.104法拍屋.tw
贊助商廣告
台南善化法拍透天-1
台南善化法拍透天-2
台南善化法拍透天-3
台南善化法拍透天-4
台南善化法拍透天-5
台南善化法拍透天-6
到Google查看地圖
到Google查看街景
物件留言
請注意,如果您詢問的內容與物件不相符合或是廣告,經過審核,系統將會直接刪除您的發問內容
檢舉不實
相似物件
安南公學路四段8號
透天/0房
93.73坪
售1616萬
南區明興路1351
透天/0房
105.06坪
售1580萬
安南安和路二段28
透天/0房
80.64坪
售1831萬5000元
安南本原街一段27
透天/0房
100.51坪
售1539萬
www.889房屋.tw
免責聲明:本系統為租用式開放房屋買賣網站建置平台,僅提供會員查詢-
靜巷透天小新營成功路53巷75號
-等房屋資訊參考,並不涉入任何諮詢、交易。 物件(服務)聯絡人公佈的資訊、文字、照片、圖形、產權、廣告內容、或其他資料若有不實或違法情事,或與客戶聯絡交易過程中若衍生民事或刑事等法律問題,皆與本網站無關,所有商標、文章、名稱等版權,皆歸屬原著作者所有!
本網站保留一切權利,非經正式書面同意,禁止轉貼節錄。
資料處理中,請稍後...