松山區光復北路國林光復大樓台北小巨蛋站

最後更新:16小時內
房屋基本資料
案名台北小巨蛋站【 國林光復大樓】大樓案號114黃18075
地址台北市松山區光復北路35號4樓<12>社區/大樓國林光復大樓
銷售狀態待標中售價
售5840萬
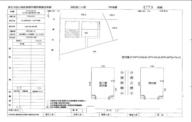
房屋類型法拍大樓總登記坪數78.33 坪
格局屋齡32年
每坪單價74.56萬/坪公設比
車位地下二樓車位,車位係機械式(塔式)座向
無障礙環境法拍屋 本物件是法拍屋
拍次 : 第一拍
開標日期 : 114/11/19(三)
建物所在樓層4樓/共12樓管理費
管委會中庭
電梯 未知 是否為凶宅
300公尺內嫌惡設施面前道路
面寬縱深
邊間房屋銷售來源不動產經紀人/專業仲介
房屋特色

▲拍賣公告:台北法院
▲拍賣標的物:台北市松山區光復北路35號4樓<12>
▲【謄本資料】:
建物登記:總坪數78.33坪主建坪45.11坪,公設坪33.22坪
▲【法院筆錄】:
建號建物現場查封時債務人公司法定代理人在場稱為自用,無出租,無漏水,地震後有小裂痕,結構無受損,故本件拍定後點交。
▲【生活機能】:
▲【拍次說明】:
標售拍次(目前拍次底價):
第一拍底價:5840萬
第二拍底價:
第三拍底價:
拍賣日期:114/11/19(三)
▲台北∣新北∣桃園∣新竹
★Houseinfo:http://www.xn--ogt54mdnjqrqpix.tw/
▲【代標服務】
<過濾案件>追蹤拍賣日期...
<評估案件>投標全場陪同及標價最後建議...
<包辦交屋>與法院協商現住人交屋事項...
<代墊尾款>辦理銀行代墊及投標尾款手續...

※此案件為法拍屋無法看屋,實際狀況以法院筆錄為主。
詳細資訊了解請撥李小姐(02)8260-2416|0986-508652
財欣不動產管理顧份有限公司【統一編號】28306523
坪數說明
建物登記總坪數78.33土地登記總坪數
主建物坪數45.11停車位坪數
附屬建物坪數公共設施坪數33.22
增建坪數地下室坪數
周邊環境
生活機能距交通部公路總局臺北市區監理所步行約5分鐘、松山文創園區步行約10分鐘,社區內有Honda Cars台北松山店(81號)、TOYOTA光復服務廠、中油直營光復北路站鄰近交通
鄰近地標公園綠地
鄰近學區捷運站
房屋聯絡人資訊
聯絡人姓名李小姐
(煩請告知聯絡人,您是在889房屋資訊網看到這則廣告,真摯感恩您的幫忙)
手機
0986-508-652
Line加入好友Line加入好友
所屬公司名稱財欣不動產管理顧問有限公司/專業代標/合法經紀業者
公司電話聯絡電話:02-82602416 / 0986508652公司傳真
公司地址新北市土城區金城路二段396號11樓/桃園市莊敬路一段346號4樓
網 址http://www.法拍屋代標推薦.tw
贊助商廣告
台北松山法拍大樓-1
台北松山法拍大樓-1
台北松山法拍大樓-2
台北松山法拍大樓-2
台北松山法拍大樓-3
台北松山法拍大樓-3
台北松山法拍大樓-4
台北松山法拍大樓-4
台北松山法拍大樓-5
台北松山法拍大樓-5
台北松山法拍大樓-6
台北松山法拍大樓-6

物件留言
請注意,如果您詢問的內容與物件不相符合或是廣告,經過審核,系統將會直接刪除您的發問內容
等待圖示
檢舉不實
等待圖示
黃金曝光
相似物件
www.889房屋.tw免責聲明:本系統為租用式開放房屋買賣網站建置平台,僅提供會員查詢-松山區光復北路國林光復大樓台北小巨蛋站-等房屋資訊參考,並不涉入任何諮詢、交易。 物件(服務)聯絡人公佈的資訊、文字、照片、圖形、產權、廣告內容、或其他資料若有不實或違法情事,或與客戶聯絡交易過程中若衍生民事或刑事等法律問題,皆與本網站無關,所有商標、文章、名稱等版權,皆歸屬原著作者所有!
本網站保留一切權利,非經正式書面同意,禁止轉貼節錄。