07-7963288
客服電話
House-Info房屋網
│
889house
│
申請房仲網站
首頁
台北
新北
基隆
桃園
新竹
苗栗
台中
彰化
南投
雲林
嘉義
台南
高雄
屏東
台東
花蓮
宜蘭
澎湖
首頁
›
台北房地產
›
台北法拍大樓
›
大安區法拍大樓
›
大安區新生南路三段星雲大廈師大台大龍門金華國中大安森林公園
大安區新生南路三段星雲大廈師大台大龍門金華國中大安森林公園
最後更新:10小時內
檢舉不實
│
列印
│
物件留言
|
觀看地圖
大安區新生南路三段星雲大廈師大台大龍門金華國中大安森林公園
大安區新生南路三段星雲大廈師大台大龍門金華國中大安森林公園
房屋基本資料
案名
新生南路三段 【星雲大廈】師大台大 龍門金華國中 大安公園
案號
113廉471法 115/04/07(二)14:30
地址
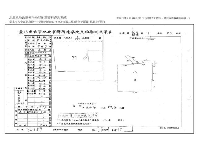
台北市大安區新生南路三段4號8樓
社區/大樓
星雲大廈
銷售狀態
待標中
售價
售4695萬
售3775萬
房屋類型
法拍大樓
總登記坪數
37.21 坪
格局
0房
屋齡
48年
每坪單價
101.45萬/坪
公設比
車位
座向
無障礙環境
有
法拍屋
本物件是法拍屋
拍次 : 第二拍 點交
開標日期 : 2026/04/07(二) 14:30
建物所在樓層
8樓/共14樓
管理費
管委會
有
中庭
沒有
電梯
有
是否為凶宅
不是
300公尺內嫌惡設施
面前道路
面寬
縱深
邊間
不是
房屋銷售來源
不動產經紀人/專業仲介
房屋特色
【法院筆錄內容】
1‧拍定後點交與否:本件係拍賣土地應有部分及建物全部,拍定後建物依現況點交。
2‧本件拍賣標的無他項權利設定。
3‧本件建物於114年12月11日查封時大門深鎖,無人應門,社區總幹事表示該屋已許多年無人居住。經入內檢視後,現況為空屋,格局為三房二廳二衛、一間儲藏室,屋內遺留大批家具、日常生活用品等物品。目視無增建,惟屋內有多處壁癌及牆面油漆脫落,且嚴重漏水,請應買人注意,依強制執行法第69條規定,拍賣物買受人就物之瑕疵無擔保請求權,拍定人不得於拍定後主張是項權利。
4‧本件拍賣標的,經向主管機關查詢結果,表示無海砂屋、輻射屋、建物內有非自然死亡、遭列管為地震受損建築物等足以影響交易之特殊情事,惟實際情形為何,仍請應買人自行查明,不得於拍定後主張瑕疵擔保請求權。
5‧本件採現場投標與通訊投標並行之方式,通訊投標應寄達日期:自公告日起至開標日前1日止。《法務部發文字號:北執廉113年地稅執字第00000471號/可通訊投標》
【保證金】
755萬
【拍賣履歴】
一拍2026/03/03流標底標價格4695萬
二拍2026/04/07底標價格3775萬
三拍底標價格3004.8萬
四拍底標價格2403.8萬
【焦點法拍履歴】
👩🏻⚖️從業二十年以上經驗|競競業業|正派經營
🎯投標準備⇥法拍流程說明|標單填寫|案件現場勘查有無特殊情事|成本評估分析
💰銀行貸款⇥法拍物件估價|投標人財力評估|銀行代墊款協助辦理|最高八成
🏡拍定得標⇥強制執行書狀、履勘陳報書狀往返|債務人搬遷協商|遺留物造冊查估
🎁委託代標⇥免費|委託代標未得標⇥免費
🏢鑫創資產管理有限公司
顏麗杏0911-965339營業員證號:(101)登字第212862號
連真甄0909-031993營業員證號:(101)登字第192002號
更多物件☞焦點法拍
經紀人李彥槿:109北市經證字第02110號
坪數說明
建物登記總坪數
37.21
土地登記總坪數
3.98
主建物坪數
34.39
停車位坪數
附屬建物坪數
2.82
公共設施坪數
增建坪數
地下室坪數
周邊環境
生活機能
鄰近交通
鄰近地標
公園綠地
鄰近學區
龍安國小,金華國中
捷運站
房屋聯絡人資訊
聯絡人姓名
小顏
(煩請告知聯絡人,您是在889房屋資訊網看到這則廣告,真摯感恩您的幫忙)
手機
0911-965-339
Line加入好友
所屬公司名稱
鑫創資產管理有限公司
公司電話
公司傳真
公司地址
新北市新莊區中環路二段423號一樓
網 址
http://www.1314home.tw
贊助商廣告
大安區大樓法拍-1
大安區大樓法拍-2
大安區大樓法拍-3
大安區大樓法拍-4
大安區大樓法拍-5
大安區大樓法拍-6
大安區大樓法拍-7
大安區大樓法拍-8
大安區大樓法拍-9
大安區大樓法拍-10
大安區大樓法拍-11
大安區大樓法拍-12
大安區大樓法拍-13
大安區大樓法拍-14
到Google查看地圖
到Google查看街景
物件留言
請注意,如果您詢問的內容與物件不相符合或是廣告,經過審核,系統將會直接刪除您的發問內容
檢舉不實
黃金曝光
士林後港街160-
大樓_法拍大樓/0房
52.4坪
售3774萬6000元
大安區新生南路三段
大樓/3房
37.2坪
售3775萬
中山區農安街24-
大樓_法拍大樓/0房
11.36坪
售1080萬
大安區大安區仁愛路
大樓/0房
50.61坪
售3986萬
相似物件
內湖民權東路六段2
大樓/3房
46.23坪
售3636萬
士林天母西路3號9
大樓/4房
47.93坪
售3476萬
大安區仁愛路四段1
大樓_台北大巨蛋商圈/4房
50.61坪
售3986萬7000元
士林後港街160-
大樓_一樓_捷運劍潭站/3房
52.4坪
售3774萬6000元
www.889房屋.tw
免責聲明:本系統為租用式開放房屋買賣網站建置平台,僅提供會員查詢-
大安區新生南路三段星雲大廈師大台大龍門金華國中大安森林公園
-等房屋資訊參考,並不涉入任何諮詢、交易。 物件(服務)聯絡人公佈的資訊、文字、照片、圖形、產權、廣告內容、或其他資料若有不實或違法情事,或與客戶聯絡交易過程中若衍生民事或刑事等法律問題,皆與本網站無關,所有商標、文章、名稱等版權,皆歸屬原著作者所有!
本網站保留一切權利,非經正式書面同意,禁止轉貼節錄。
資料處理中,請稍後...