07-7963288
客服電話
House-Info房屋網
│
889house
│
申請房仲網站
首頁
台北
新北
基隆
桃園
新竹
苗栗
台中
彰化
南投
雲林
嘉義
台南
高雄
屏東
台東
花蓮
宜蘭
澎湖
首頁
›
台北房地產
›
台北法拍大樓
›
信義區法拍大樓
›
信義計畫區冠德遠見SRC結構信義路五段95號3樓1
信義計畫區冠德遠見SRC結構信義路五段95號3樓1
最後更新:5小時內
檢舉不實
│
列印
│
物件留言
|
觀看地圖
信義計畫區冠德遠見SRC結構信義路五段95號3樓1
信義計畫區冠德遠見SRC結構信義路五段95號3樓1
房屋基本資料
案名
信義計畫區【冠德遠見】SRC造,信義路五段95號3樓-1
案號
112吉157590
地址
台北市信義區信義路五段95號3樓-1
社區/大樓
冠德遠見(冠德建設)
銷售狀態
待標中
售價
售6754萬
房屋類型
法拍大樓
總登記坪數
52.61 坪
格局
2房
,2廳,2衛
屋齡
18年
每坪單價
128.38萬/坪
公設比
車位
坡道平面
座向
朝北
無障礙環境
法拍屋
本物件是法拍屋
拍次 : 1
開標日期 : 114/12/23
建物所在樓層
3/27
管理費
管委會
有
中庭
有
電梯
有
是否為凶宅
300公尺內嫌惡設施
面前道路
面寬
縱深
邊間
是
房屋銷售來源
不動產經紀人/專業仲介
房屋特色
貸款才是決勝點,提供預審,保證核貸
千萬經理人,接任台灣不動產拍賣協會監事
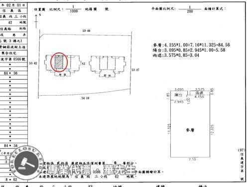
◆門牌:信義路五段95號3樓-1
◆主建物:25.58坪
◆附屬:2.61坪
◆公設:11.29坪
◆車位:13.13坪
【1車║坡平式║編號B2-92】
◆土地:7.40坪
◆土地現值【特定業務區■114年公告現值:1114833元/㎡】
◆房屋用途:SRC造/住家用
◆房屋樓層:所在3樓/總樓層27樓
◆房屋朝向:朝北
【案件特色】
◎信義計畫區核心地段、冠德遠見指標型社區
◎房屋格局:2房/2廳/2衛(此格局為原建設規劃或內政部實價登錄,僅供參考,以現況為準!)
◎交通動線:位於信義路五段,近象山站與主要幹道,開車與通勤動線良好
◎捷運站:象山站(150公尺),步行可達信義線與板南線轉乘便利
◎公車站牌:信義路五段沿線多線公車,可快速前往台北各行政區
◎生活機能:鄰近信義商圈、百貨商場、餐飲、娛樂、採買一次到位
◎鄰近學校:博愛國小、興雅國中(雙語)等學區完整
◎公園綠地:松德公園、信義綠園道與周邊綠地多、休閒散步方便
◎金融機構:信義計畫區銀行與金融機構密集辦理業務效率高
◎醫療診所:周邊診所與大型醫院資源完整、臺北市立聯合醫院
【社區簡介】
◎冠德建設指標作品、位於信義計畫區、核心地段
◎總戶數:122戶,社區規模完整管理成熟
◎建設公司:冠德建設
◎建築設計:李祖原建築師事務所,知名建築團隊規劃
◎營造公司:根基營造,大型甲級營造廠施工,結構品質佳
◎公共設施:接待大廳、中庭花園、交誼廳、會議室、健身房、游泳池、信箱區、垃圾集中處理、24小時管理
【法院筆錄】●點交情形→點交●
1‧2558建號建物現場查封時現為空屋狀態,無人居住使用,故拍定後點交,停車位位於地下2層,編號為92號,現已出租他人使用,並未簽定書面租約,每月租金為8000元,故停車位部分拍定後不點交,由拍定人自行解決。
2‧2544、2545建號建物均為公設,本件係拍賣應有部分,拍定後不點交,因公設部分應與專有部分一併為移轉登記,故建號共有人無優先承買權。《清償債務》
※無人買受時,酌減20%估算,概以執行單位公告為準
第一拍12/23底標價:6754萬
第二拍未定底標價:5404萬
第三拍未定底標價:萬
王牌經理人,十六年以上法拍經驗豐富
眼光最精準,代標多筆億元以上的案件
在地最深耕,資源豐富廣闊人脈執行力
協助自用者,找到理想實用的房屋圓夢
幫助投資人,創造物件最高投資報酬率
最專業團隊,讓您案件事半功倍又圓滿
【在地深耕,眼光精準,人脈廣闊】
■產權清楚、案件評估、排除瑕疵事故
■全程負責、快速交屋、拍後不被騷擾
■代墊利率6.3%、額度8成、手續費0.3%
■房貸利率2.65%、免排隊、立即撥款
■法拍屋代墊款、需要資金、歡迎找我
104法拍網|透明房訊|全國最大
◆規模最大◈歷史最久◆
全國七處分公司,300多位編制人員
成立於1986年,全國16家法院駐點
◆專業最強◈全國唯一◆
全國超過1800場授課專業講習
100坪倉庫,造冊拍賣遺留物
◆正派經營◈開立發票◆
營業員(99)登159091號
經紀人(96)年北市經證字01243號
一零四法拍網(股),統編28306523
能看屋的,網頁會註明。一般法拍屋查封之後無法入內參觀,可依據建物平面圖推斷室內格局是否方正,或參考樓上樓下鄰居房屋。(預約看屋留言,一律不回)
坪數說明
建物登記總坪數
土地登記總坪數
7.4
主建物坪數
25.58
停車位坪數
13.13
附屬建物坪數
2.61
公共設施坪數
11.29
增建坪數
地下室坪數
房屋聯絡人資訊
聯絡人姓名
經理:華國峰 / 特助:李佩玟
(煩請告知聯絡人,您是在889房屋資訊網看到這則廣告,真摯感恩您的幫忙)
手機
0916-000-104
Line加入好友
所屬公司名稱
透明房訊 ,104法拍網(股)
公司電話
(02)8262-5555 / (03)337-5555
公司傳真
全國直營,法拍專家
公司地址
新北市土城區金城路二段396號11樓 / 桃園市桃園區莊敬路一段346號4樓
網 址
http://www.104法拍屋.tw
贊助商廣告
信義區法拍大樓-1
信義區法拍大樓-2
信義區法拍大樓-3
信義區法拍大樓-4
信義區法拍大樓-5
信義區法拍大樓-6
信義區法拍大樓-7
信義區法拍大樓-8
信義區法拍大樓-9
信義區法拍大樓-10
信義區法拍大樓-11
信義區法拍大樓-12
信義區法拍大樓-13
到Google查看地圖
到Google查看街景
物件留言
請注意,如果您詢問的內容與物件不相符合或是廣告,經過審核,系統將會直接刪除您的發問內容
檢舉不實
黃金曝光
萬華昆明街46號五
大樓/0房
16.68坪
售768萬2000元
中正區重慶南路三段
大樓_套房_強恕高中商圈/1房
9.49坪
售904萬
士林忠勇街40巷4
大樓_華廈_法拍大樓/0房
120.43坪
售6000萬
大安區安和路一段7
大樓/4房
61.62坪
售5558萬
相似物件
信義區信義路五段9
大樓/3房
52.6坪
售6754萬
信義區信義路五段9
大樓/0房
52.61坪
售6754萬
信義區信義路五段9
大樓/0房
52.61坪
售6754萬
信義區信義路五段X
大樓_華廈/0房
52.61坪
售6754萬
www.889房屋.tw
免責聲明:本系統為租用式開放房屋買賣網站建置平台,僅提供會員查詢-
信義計畫區冠德遠見SRC結構信義路五段95號3樓1
-等房屋資訊參考,並不涉入任何諮詢、交易。 物件(服務)聯絡人公佈的資訊、文字、照片、圖形、產權、廣告內容、或其他資料若有不實或違法情事,或與客戶聯絡交易過程中若衍生民事或刑事等法律問題,皆與本網站無關,所有商標、文章、名稱等版權,皆歸屬原著作者所有!
本網站保留一切權利,非經正式書面同意,禁止轉貼節錄。
資料處理中,請稍後...