07-7963288
客服電話
House-Info房屋網
│
889house
│
申請房仲網站
首頁
台北
新北
基隆
桃園
新竹
苗栗
台中
彰化
南投
雲林
嘉義
台南
高雄
屏東
台東
花蓮
宜蘭
澎湖
首頁
›
台南房地產
›
台南透天
›
鹽水透天
›
盬水透天盬水房屋台南房屋南科房屋買賣
盬水透天盬水房屋台南房屋南科房屋買賣
最後更新:19小時內
檢舉不實
│
列印
│
物件留言
盬水透天盬水房屋台南房屋南科房屋買賣
盬水透天盬水房屋台南房屋南科房屋買賣
房屋基本資料
案名
盬水溫馨車墅・學區旁全新翻新宅
案號
地址
台南市鹽水區忠孝路
銷售狀態
帶看中
售價
售1180萬
房屋類型
透天
總登記坪數
20.27 坪
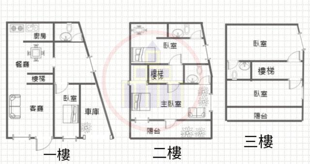
格局
5房
,1廳,4衛,2陽台,1廚房
屋齡
49年
每坪單價
58.21萬/坪
公設比
車位
一樓平面車位
座向
朝西
無障礙環境
沒有
法拍屋
不是
建物所在樓層
0
管理費
管委會
沒有
中庭
沒有
電梯
未知
是否為凶宅
不是
300公尺內嫌惡設施
面前道路
5
面寬
10.5
縱深
11~14
邊間
是
房屋銷售來源
不動產經紀人/專業仲介
房屋特色
✨物件亮點
・整棟翻新、水電管線全面更新,免整修即可入住
・廚房中島設計,讓烹飪不只是料理,更是家人間的互動時光
・每間衛浴皆有開窗,採光通風佳、乾爽又衛生
・一樓設有孝親房,長輩起居方便,三代同堂好貼心
・大面寬格局,空間方正好利用,動線流暢、生活舒適
🌸生活機能
・位於盬水國小、盬水國中學區旁,孩子上下課安全又便利
・巷口就是7-11,日常採買超方便
・近中山高速公路、台19線,南來北往交通便捷
・鬧中取靜環境佳,兼具生活機能與居住品質
💡適合對象
✔想讓家人舒適生活的換屋家庭
✔重視屋況、希望直接入住的買方
✔退休返鄉、或在地自住的理想首選
🏠這是一棟有故事、有溫度的家,讓您一走進就能感受到家的歸屬感。
歡迎您的蒞臨賞屋(地)
歡迎您電洽:0960-559-835
歡迎加LINEID0960559835
更多房屋資訊歡迎google搜尋~
點我➤House-Infohttp://www.0960559835.com/
點我➤我的粉絲專頁看更多台南房地產新聞
https://www.facebook.com/May0960559835/?ref=pages_you_manage
大台南不動產新市南科店
以上資訊如有登記錯誤,以登記簿謄本及合約書為主
經紀人:蔡嘉玲(93)南市字第00178號
尚盈不動產有限公司台南市新市區仁愛街183號
在地堅強陣容
打破品牌迷思、在地用心經營
您的真心託付、我們用心服務
急缺農、建、工業地、透天車墅、公寓大樓
一流的團隊、快速的成交、安全交易買賣有保障
馬上來電委託~租售均有服務~代租屋代管理皆可
#南科房屋買賣#善化土地#南科土地#南科買房#善化買地
#善化投資#南科投資#南科房屋買賣
坪數說明
建物登記總坪數
20.27
土地登記總坪數
23.44
主建物坪數
20.27
停車位坪數
附屬建物坪數
公共設施坪數
增建坪數
地下室坪數
周邊環境
生活機能
鄰近交通
鄰近地標
公園綠地
月津港親水公園
鄰近學區
鹽水國小,鹽水國中,明達國中
捷運站
房屋聯絡人資訊
聯絡人姓名
王麗梅
(煩請告知聯絡人,您是在889房屋資訊網看到這則廣告,真摯感恩您的幫忙)
手機
0960-559-835
Line加入好友
所屬公司名稱
大台南不動產新市店
公司電話
0960559835 (06-5890559)
公司傳真
06-5898001
公司地址
台南市新市區仁愛街183號
網 址
http://www.0960559835.com
贊助商廣告
台南鹽水透天-1
台南鹽水透天-2
台南鹽水透天-3
台南鹽水透天-4
台南鹽水透天-5
台南鹽水透天-6
台南鹽水透天-7
台南鹽水透天-8
台南鹽水透天-9
台南鹽水透天-10
台南鹽水透天-11
台南鹽水透天-12
台南鹽水透天-13
台南鹽水透天-14
台南鹽水透天-15
物件留言
請注意,如果您詢問的內容與物件不相符合或是廣告,經過審核,系統將會直接刪除您的發問內容
檢舉不實
黃金曝光
東區東門路三段
透天_別墅/4房
55.98坪
售1988萬
永康東橋七路
透天_別墅/5房
56.752坪
售2180萬
永康永康區鹽行里中
透天_店面/8房
107.3坪
售5266萬
永康南台街
透天_套房_電梯學宿/26房
51.244坪
售2880萬
相似物件
北區西門路四段
透天/4房
39.99坪
售1380萬
安南公學路七段
透天/4房
30.38坪
售888萬
永康永康區勝利街
透天/3房
27.19坪
售898萬
柳營康樂街
透天_別墅/4房
55.83坪
售880萬
www.889房屋.tw
免責聲明:本系統為租用式開放房屋買賣網站建置平台,僅提供會員查詢-
盬水透天盬水房屋台南房屋南科房屋買賣
-等房屋資訊參考,並不涉入任何諮詢、交易。 物件(服務)聯絡人公佈的資訊、文字、照片、圖形、產權、廣告內容、或其他資料若有不實或違法情事,或與客戶聯絡交易過程中若衍生民事或刑事等法律問題,皆與本網站無關,所有商標、文章、名稱等版權,皆歸屬原著作者所有!
本網站保留一切權利,非經正式書面同意,禁止轉貼節錄。
資料處理中,請稍後...