07-7963288
客服電話
House-Info房屋網
│
889house
│
申請房仲網站
首頁
台北
新北
基隆
桃園
新竹
苗栗
台中
彰化
南投
雲林
嘉義
台南
高雄
屏東
台東
花蓮
宜蘭
澎湖
首頁
›
台南房地產
›
台南透天
›
東區透天
›
東寧路成大長榮路南紡商圈東光國小後甲國中
東寧路成大長榮路南紡商圈東光國小後甲國中
最後更新:1天前
檢舉不實
│
列印
│
物件留言
|
觀看地圖
東寧路成大長榮路南紡商圈東光國小後甲國中
東寧路成大長榮路南紡商圈東光國小後甲國中
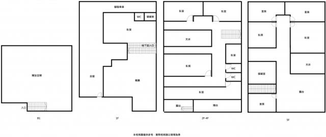
房屋基本資料
案名
東寧路/南紡夢時代~大地坪61坪透天店住
案號
3956
地址
台南市東區東寧路
銷售狀態
帶看中
售價
售6688萬
房屋類型
透天_店面
總登記坪數
162.66 坪
格局
10房以上
,2廳,7衛,2陽台,1廚房
屋齡
44年
每坪單價
41.12萬/坪
公設比
車位
門口
座向
無障礙環境
沒有
法拍屋
不是
建物所在樓層
共4樓
管理費
管委會
沒有
中庭
沒有
電梯
沒有
是否為凶宅
不是
300公尺內嫌惡設施
面前道路
10米路
面寬
縱深
邊間
房屋銷售來源
不動產經紀人/專業仲介
房屋特色
近東寧路~成大~長榮路~南紡商圈~
(1).交通四通八達.東區最佳老屋有天井
(2).緊鄰各長榮女中.南一中.成大優質學區
(3).頂級商圈.商家文武百市.開店優選
(4).不失優雅之處.大地坪好運用
(5)W寬約8.2米*深度25米.臨路10米
坪數說明
建物登記總坪數
162.66
土地登記總坪數
61.4
主建物坪數
停車位坪數
附屬建物坪數
公共設施坪數
增建坪數
地下室坪數
周邊環境
生活機能
鄰近交通
鄰近地標
公園綠地
鄰近學區
東光國小,後甲國中
捷運站
房屋聯絡人資訊
聯絡人姓名
陳盈秀
(煩請告知聯絡人,您是在889房屋資訊網看到這則廣告,真摯感恩您的幫忙)
手機
0928-010-990
Line加入好友
所屬公司名稱
誠昱不動產企業社(住商成大東興店)
公司電話
0928010990 (LINE)
公司傳真
公司地址
台南市永康區小北路30號
網 址
http://www.台南秀秀房仲網.tw
贊助商廣告
台南東區透天-1
台南東區透天-2
台南東區透天-3
台南東區透天-4
台南東區透天-5
台南東區透天-6
台南東區透天-7
台南東區透天-8
台南東區透天-9
台南東區透天-10
台南東區透天-11
台南東區透天-12
台南東區透天-13
台南東區透天-14
台南東區透天-15
到Google查看地圖
到Google查看街景
物件留言
請注意,如果您詢問的內容與物件不相符合或是廣告,經過審核,系統將會直接刪除您的發問內容
檢舉不實
黃金曝光
永康永康區鹽行里中
透天_店面/8房
107.3坪
售5266萬
中西區中西區西賢二
透天_別墅/5房
155.77坪
售5980萬
永康永春街
透天_別墅/6房
73.762坪
售2580萬
永康南台街
透天_套房_電梯學宿/26房
51.244坪
售2880萬
相似物件
安平光州七街
透天_別墅_辦公室/4房
103.99坪
售6888萬
善化龍目井路
透天_店面_套房/17房
163.57坪
售6800萬
中西區成功路
透天/0房
59.52坪
售6988萬
安平安平路
透天_店面/4房
122.9坪
售6600萬
www.889房屋.tw
免責聲明:本系統為租用式開放房屋買賣網站建置平台,僅提供會員查詢-
東寧路成大長榮路南紡商圈東光國小後甲國中
-等房屋資訊參考,並不涉入任何諮詢、交易。 物件(服務)聯絡人公佈的資訊、文字、照片、圖形、產權、廣告內容、或其他資料若有不實或違法情事,或與客戶聯絡交易過程中若衍生民事或刑事等法律問題,皆與本網站無關,所有商標、文章、名稱等版權,皆歸屬原著作者所有!
本網站保留一切權利,非經正式書面同意,禁止轉貼節錄。
資料處理中,請稍後...