南區店面

最後更新:1天前
房屋基本資料
案名台南市南區~透天店面~金華路95地坪三角窗金店霸案號34156
地址台南市南區金華路一段
銷售狀態帶看中售價
售6800萬售6500萬
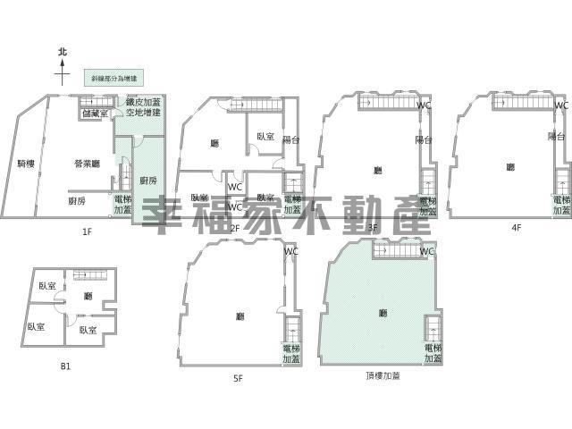
房屋類型透天_店面總登記坪數366.39 坪
格局6房,6廳,6衛,0陽台,0廚房屋齡41年
每坪單價17.74萬/坪公設比
車位座向朝西
無障礙環境沒有法拍屋 不是
建物所在樓層共5樓+B1管理費
管委會沒有中庭沒有
電梯是否為凶宅不是
300公尺內嫌惡設施面前道路18米
面寬15米縱深
邊間房屋銷售來源不動產經紀人/專業仲介
房屋特色
【95大地坪】【18米路面】

【位居角窗】【現況出租中】

台南市南區【金華路】95地坪三角窗金店霸

●委託價格:6800萬降6500萬

●登記地坪:95.89坪

●登記建坪:366.39坪

●建物樓層:共5樓+B1

●室內格局:6房6廳6衛

●建築完成日:74年1月(約40年)

●土地格局:面寬約15米,臨路約18米



◎95大地坪,內有電梯,目前一樓店面出租中

◎三面採光,三樓以上為開放空間,自用出租皆宜

◎位於金華路面,地點醒目,商圈集中,機能便利

◎南區透天店面,稀有釋出,把握機會,錯過可惜



!LINE好友人數已滿,歡迎直接來電詢問!

★合法經紀業者,通過國家考試及格特約代書★

★給您最誠信,經營,專業的服務,價錢實在★

★幸福聯賣,成交快速,保障交易,安全買賣★

★履約保證,詳細產權現況說明書,讓您放心★

★歡迎來電買屋.委託賣屋.土地.農地.工業地.廠房★



買屋搜尋【台南農地出售】【阿妙房屋0910-787-268】

台南房屋,台南不動產,台南電梯大樓,台南大樓,台南電梯華廈,台南公寓,台南廠房,

台南賣屋,台南透天,台南店面,台南別墅,​台南透天店面,台南透天別墅,台南買屋,

台南租屋,台南土地買賣,台南農地,台南建地,台南廠房,台南工業用地,高雄房屋,

高雄不動產,高雄電梯大樓,高雄大樓,高雄電梯華廈,高雄公寓,高雄房屋,高雄廠房,

高雄賣屋,高雄透天,高雄店面,高雄別墅,​高雄透天店面,高雄透天別墅,高雄買屋,

高雄租屋,高雄土地買賣,高雄農地,高雄建地,高雄廠房,高雄工業用地,高雄工業地

鴻運富不動產開發有限公司幸福家不動產安南店營業員證號(93)登字第040059號

*以上資料僅供參考,如有因誤繕,誤寫等記載錯誤事由,一律以謄本登記為準。

*上架資料僅於委託銷售契約期間內有效。若因契約期滿,

成交等情形而生無法銷售等事由者,請務必與承辦人員再次確認。



坪數說明
建物登記總坪數366.39土地登記總坪數95.89
主建物坪數停車位坪數
附屬建物坪數公共設施坪數
增建坪數地下室坪數
房屋聯絡人資訊
聯絡人姓名顏仟妙
(煩請告知聯絡人,您是在889房屋資訊網看到這則廣告,真摯感恩您的幫忙)
手機
0910-787-268
Line加入好友
所屬公司名稱鴻運富不動產開發有限公司
公司電話0910-787-268公司傳真
公司地址台南市安南區北安路二段147號
網 址http://www.旺家買賣房屋資訊.tw
贊助商廣告
台南廠房,台南廠辦,台南農地小廠房,台南便宜工業廠房
台南廠房,台南廠房買賣,台南廠房出租
台南透天-1
台南透天-1
台南透天-2
台南透天-2
台南透天-3
台南透天-3
台南透天-4
台南透天-4
台南透天-5
台南透天-5
台南透天-6
台南透天-6
台南透天-7
台南透天-7
台南透天-8
台南透天-8
台南透天-9
台南透天-9
台南透天-10
台南透天-10
台南透天-11
台南透天-11
台南透天-12
台南透天-12
台南透天-13
台南透天-13
台南透天-14
台南透天-14
台南透天-15
台南透天-15

物件留言
請注意,如果您詢問的內容與物件不相符合或是廣告,經過審核,系統將會直接刪除您的發問內容
等待圖示
檢舉不實
等待圖示
黃金曝光
相似物件
www.889房屋.tw免責聲明:本系統為租用式開放房屋買賣網站建置平台,僅提供會員查詢-南區店面-等房屋資訊參考,並不涉入任何諮詢、交易。 物件(服務)聯絡人公佈的資訊、文字、照片、圖形、產權、廣告內容、或其他資料若有不實或違法情事,或與客戶聯絡交易過程中若衍生民事或刑事等法律問題,皆與本網站無關,所有商標、文章、名稱等版權,皆歸屬原著作者所有!
本網站保留一切權利,非經正式書面同意,禁止轉貼節錄。