07-7963288
客服電話
House-Info房屋網
│
889house
│
申請房仲網站
首頁
台北
新北
基隆
桃園
新竹
苗栗
台中
彰化
南投
雲林
嘉義
台南
高雄
屏東
台東
花蓮
宜蘭
澎湖
首頁
›
台南房地產
›
台南大樓
›
永康大樓
›
台南市大樓套房透天別墅店面店住投資廠房廠辦套房電梯車墅
台南市大樓套房透天別墅店面店住投資廠房廠辦套房電梯車墅
最後更新:21小時內
檢舉不實
│
列印
│
物件留言
台南市大樓套房透天別墅店面店住投資廠房廠辦套房電梯車墅
台南市大樓套房透天別墅店面店住投資廠房廠辦套房電梯車墅
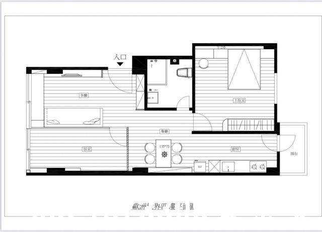
房屋基本資料
案名
南應大整新兩房
案號
FS208029
地址
台南市永康區永康區中正路
銷售狀態
帶看中
售價
售698萬
房屋類型
大樓
總登記坪數
26.83 坪
格局
2房
,2廳,1衛,1廚房
屋齡
34年
每坪單價
26.02萬/坪
公設比
車位
座向
無障礙環境
法拍屋
不是
建物所在樓層
4/11
管理費
432
管委會
中庭
電梯
有
是否為凶宅
不是
300公尺內嫌惡設施
面前道路
面寬
縱深
邊間
房屋銷售來源
不動產經紀人/專業仲介
房屋特色
‧全新時尚裝潢家具
‧低總價小家庭最愛
‧生活便利求學方便
‧直接入主輕鬆擁有
房屋聯絡人資訊
聯絡人姓名
梁素美
(煩請告知聯絡人,您是在889房屋資訊網看到這則廣告,真摯感恩您的幫忙)
手機
0921-873-309
Line加入好友
所屬公司名稱
梁素美台南房屋網
公司電話
0921873309-梁素美
公司傳真
0921873309-梁素美
公司地址
台南市永康區中華路376號
網 址
http://www.0921873309.tw
贊助商廣告
台南永康大樓-1
台南永康大樓-2
台南永康大樓-3
台南永康大樓-4
台南永康大樓-5
台南永康大樓-6
台南永康大樓-7
台南永康大樓-8
台南永康大樓-9
台南永康大樓-10
台南永康大樓-11
台南永康大樓-12
台南永康大樓-13
物件留言
請注意,如果您詢問的內容與物件不相符合或是廣告,經過審核,系統將會直接刪除您的發問內容
檢舉不實
黃金曝光
永康復華三街
大樓/3房
48.98坪
售798萬
相似物件
永康文賢街
大樓/3房
24.54坪
售688萬
永康復華三街
大樓/3房
28.5坪
售698萬
安平郡平
大樓/2房
27.26坪
售698萬
永康永康區六合里新
大樓/3房
29.57坪
售698萬
www.889房屋.tw
免責聲明:本系統為租用式開放房屋買賣網站建置平台,僅提供會員查詢-
台南市大樓套房透天別墅店面店住投資廠房廠辦套房電梯車墅
-等房屋資訊參考,並不涉入任何諮詢、交易。 物件(服務)聯絡人公佈的資訊、文字、照片、圖形、產權、廣告內容、或其他資料若有不實或違法情事,或與客戶聯絡交易過程中若衍生民事或刑事等法律問題,皆與本網站無關,所有商標、文章、名稱等版權,皆歸屬原著作者所有!
本網站保留一切權利,非經正式書面同意,禁止轉貼節錄。
資料處理中,請稍後...